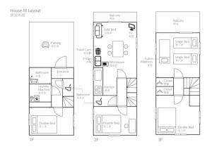
House M - Vacation STAY 20072 is a four-bedroom holiday home located in Tokyo near Toshima Ward Tokiwaso Street Rest Place and Jiseiin Temple, offering free private parking as a key convenience.
The accommodation features air conditioning throughout and includes a fully equipped kitchen with a microwave and refrigerator. Guests can enjoy free Wi-Fi access and watch TV in the living area. The bathroom contains both a shower and a bathtub, along with complimentary toiletries. A washing machine is available on-site for added convenience.
This non-smoking property provides desk space suitable for work or study needs. It lies within close proximity to local landmarks such as Senkawa Sculpture Park, Tetsugakudo Park, Kuzuyagoryo Shrine, Sengen Shrine, and Yuzo Saeki Atelier Memorial. Tokyo Haneda Airport is situated 24 kilometers from the holiday home.
Step into our world and explore the room offerings and facilities through genuine guest testimonials and snapshots on sleephotelstokyo.com.
Rooms: 1Check guest reviews about House M - Vacation STAY 20072
All reviews in one place!
Be the first to share your opinion!
Stayed at House M - Vacation STAY 20072? Your experience is very valuable to us and other guests. Leave your review! Thank you.









